
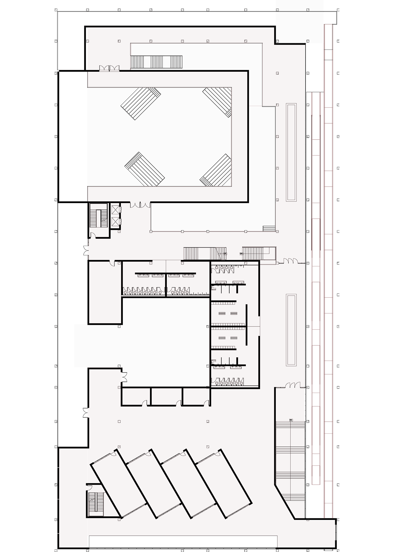
The Dance Studio is a civic building in Albuquerque, New Mexico, organized by a concrete structural grid that establishes order across a site defined by layered vernacular conditions. Indigenous pueblo architecture, the regionalized pueblo revival of Santa Fe, and the exposed massing of Albuquerque’s brutalist structures form the contextual field in which the project operates. Rather than selecting a single reference, the building uses the grid as a stabilizing framework within which varied forms are placed, allowing continuity and difference to coexist without reliance on stylistic quotation.
Within this structural order, volumes are shaped by thickness, shadow, and controlled openings. Material weight and proportion draw from local construction traditions while remaining abstracted from direct imitation. Context is understood not as a visual language to be reproduced but as a set of architectural, social, and cultural conditions to be negotiated. The result is a building that is legible within its surroundings yet clearly ordered by its own internal logic.








