
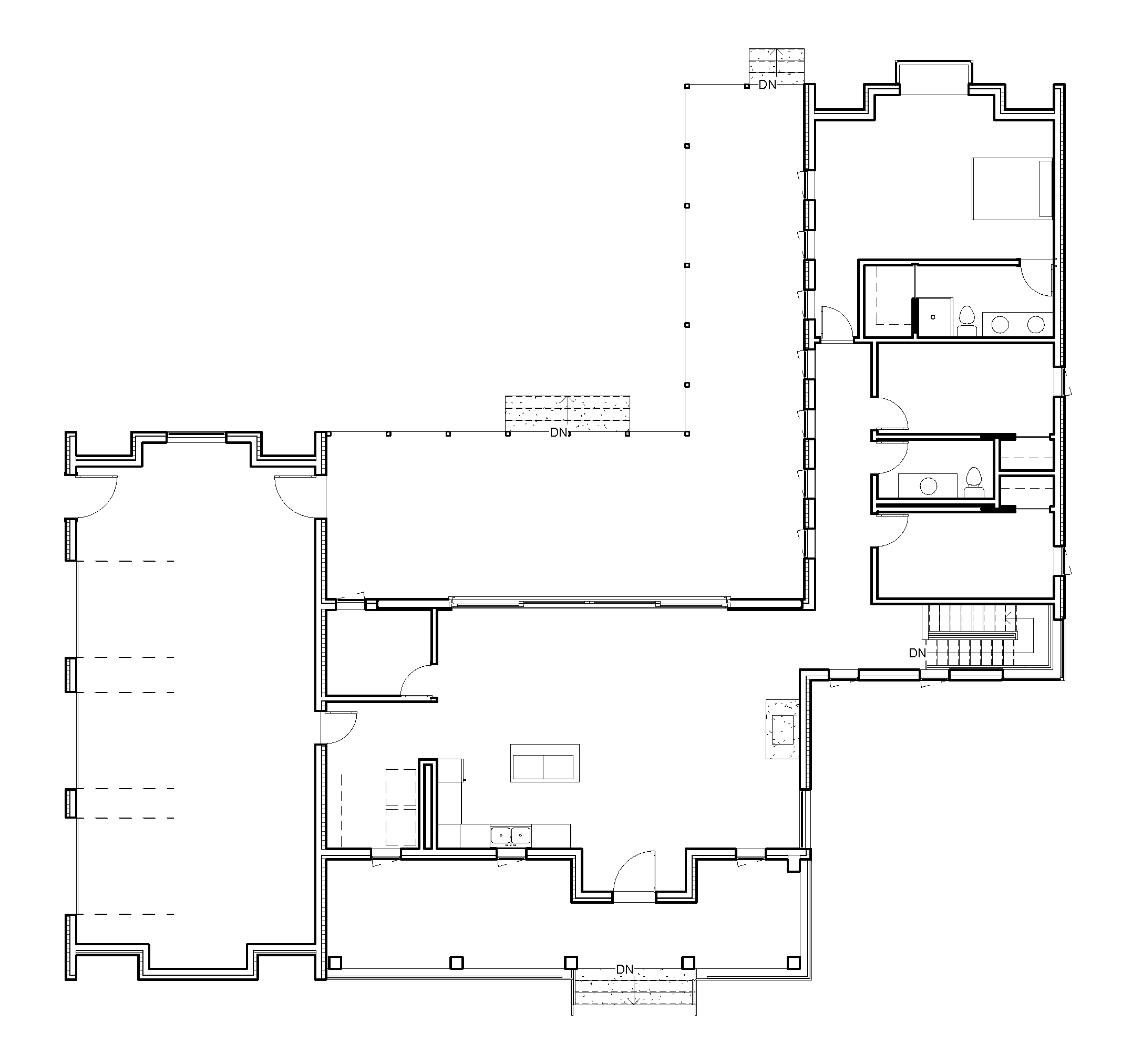
A residential project defined by a clear structural order and restrained geometry. The work focuses on spatial hierarchy, daylight, and the relationship between enclosure and landscape.





A residential project defined by a clear structural order and restrained geometry. The work focuses on spatial hierarchy, daylight, and the relationship between enclosure and landscape.



