
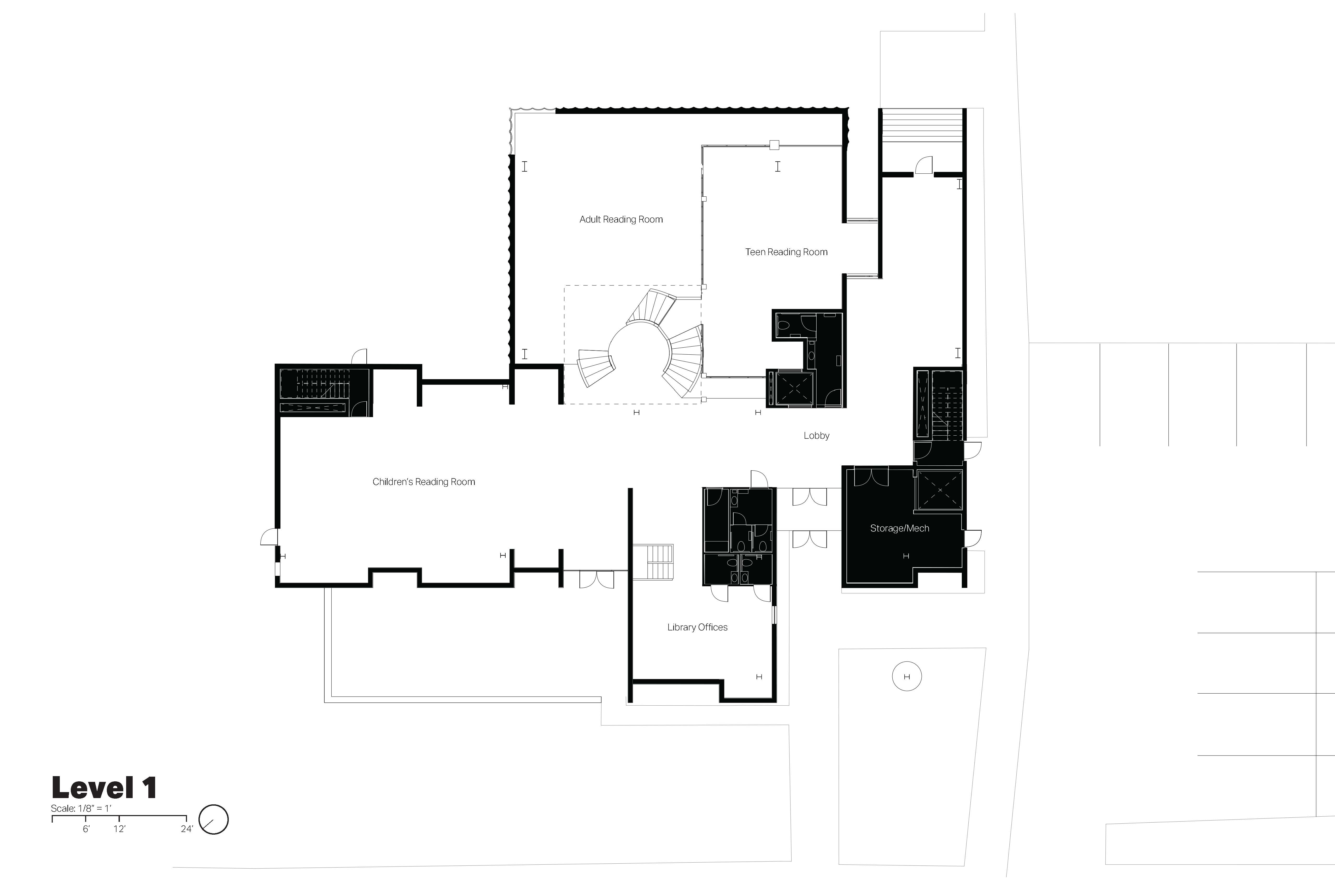
Adaptive reuse of an existing library in New Haven, CT. This adaptation considers how the library might reform as a social institution by taking on new programs for its local community.
















Adaptive reuse of an existing library in New Haven, CT. This adaptation considers how the library might reform as a social institution by taking on new programs for its local community.














